本項服務是根據客戶現有盆齒類、齒圈類等零件淬火壓床的運行狀況以及升級改造要求,對壓床各部分進行清洗、修復、改造。升級改造內容包括但不限于以下幾項。
1.主機
對主機進行拆分、清洗,對各零件進行檢測,對破損零件加工、更換。包括工作臺平面度修復,中心油缸、內環(huán)油缸、外環(huán)油缸修復,活塞桿修復等。
2.電氣控制系統(tǒng)
修復后整個淬火過程的動作由PLC可編程控制器自動控制,增加了觸摸屏,使得參數設置更為便捷,工作狀態(tài)和故障可直觀顯示,采用懸臂控制箱,可以進行多位置多點操作。淬火油流量改成數控變頻控制,具備超過50份以上壓淬淬火工藝的存儲和調用。增設淬火油油溫檢測控制系統(tǒng),具備淬火油的油溫顯示功能以及油溫超高、低溫報警功能。
3.液壓系統(tǒng)
修復后將液壓系統(tǒng)所有密封件更換為進口密封件(包括泵站及油缸等),質量更加可靠,使用壽命更長,確保液壓系統(tǒng)3年以上時間不滲漏液壓油。
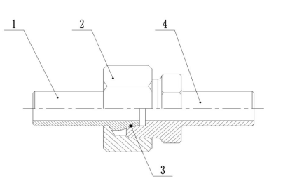
液壓系統(tǒng)的所有硬管管路接頭選用高品質24°錐密封接頭(接頭結構見附圖1)。該型式的接頭經過我公司多臺設備的現場使用驗證,在沖擊和震動頻繁的工況下仍有著良好的密封性能。

1.焊接接管 2.螺母 3.O型密封圈 4.接頭體
附圖1
在液壓站上加裝液壓油冷卻器,形成一個液壓油的獨立冷卻回路。液壓油冷卻器對液壓油的冷卻效果要遠遠高于風冷機,可以將液壓油的溫度穩(wěn)定在最適宜的工作溫度,使液壓系統(tǒng)能夠提供穩(wěn)定的壓力輸出并延長液壓管路和密封件的使用壽命。
4.冷卻系統(tǒng)
改造后會將冷卻泵移至機體外部后側,對泵的維修和更換非常便利。
通過變頻控制和流量積算達到對淬火油流量的精確控制,可以滿足不同大小的零件對流量的要求。
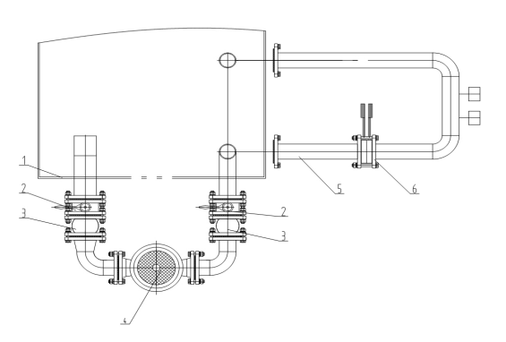
冷卻管路改造后將原有的3種通徑的組合管路改為一條大通徑管路,避免了雜物進入管路對管路造成堵塞的可能。(冷卻系統(tǒng)見附圖2)

1.主機下箱體 2.蝶閥 3.軟連接 4.冷卻泵 5.冷卻管路 6.流量計
附圖2
